2021-2023
Umbau Swiss Re CGD Garden Lounge
Rüschlikon, ZH
Swiss Re Investment AG
B. Burren und D. Schulz
Mitarbeit N. Benmakhlouf-Larcher, S. Schlagheck, C. Nocco
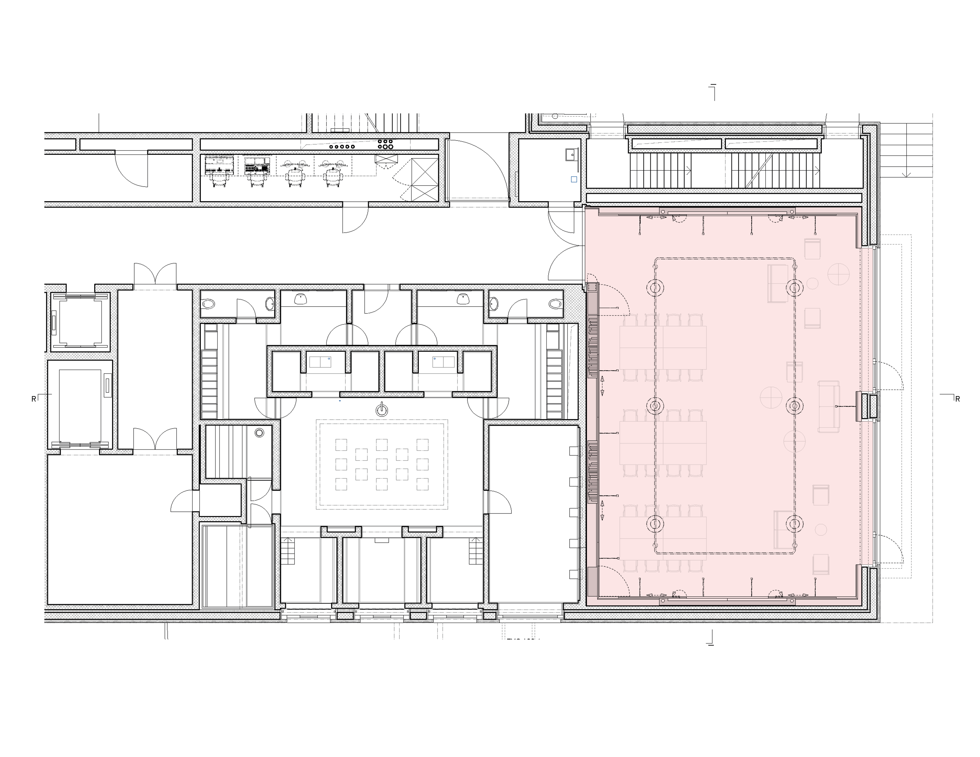
Die ehemalige Bibliothek des Center of Global Dialogue der Swiss Re in Rüschlikon wurde zu einer multifunktionalen Garden Lounge umgebaut, die einen starken Bezug zum Garten aufnimmt und an den Typus einer Sala Terrena erinnert. Eine raumhaltige, umlaufende Hülle aus silbern gebeizter Hagebuche bildet den ruhigen, lichten Hintergrund für die vielfältige Nutzung des Raumes, integriert Technik, Regale und multimediale Ausstattung und ermöglicht durch verschiebbare Elemente unterschiedliche Szenarien zwischen Bibliotheksbetrieb und Eventnutzung.
Geöffnet gibt die Hülle im Alltag den Blick auf die Bücherregale frei, während sie bei Veranstaltungen Monitore sichtbar macht. Technische Installationen wie Lüftung, Beleuchtung und Medientechnik wurden weitgehend unsichtbar integriert, sichtbare Elemente einheitlich in schwarzem Stahlrohr gestaltet.
Das Gestaltungskonzept der Möbel knüpft an die ursprüngliche Idee des Gebäudes an, in dem alle Möbel und Textilien eigens von den Architekten Adolf Krischanitz, Hermann Czech und dem Künstler Gilbert Bretterbauer entworfen wurden. Für den Umbau wurden diese Möbel überarbeitet und mit neuen Stoffen bezogen. Die Ausformulierung des künstlerischen Konzeptes der Textilien erfolgte durch Gilbert Bretterbauer. Er ordnet jedem Möbeltypus eine eigene Stoffkollektion mit einer starken Farbigkeit zu. Die Zusammenstellung der Möbel der unterschiedlichen Möblierungsszenarien, mit denen der Raum bespielt wird, schafft immer neue Farbzusammenstellungen und Kompositionen. Der fast raumfüllende Teppich verbindet die verschiedenen Möbelgruppen zu einem Gesamtbild und unterstützt die variablen Nutzungsmöglichkeiten. So entsteht ein farbintensives, atmosphärisch dichtes Raumkunstwerk, das die ursprüngliche Gestaltung des CGD fortführt und gleichzeitig den Prinzipien des zirkulären Bauens und der Nachhaltigkeit entspricht.
2021-2023
Umbau Swiss Re CGD Garden Lounge
Rüschlikon, ZH
Swiss Re Investment AG
B. Burren und D. Schulz
Mitarbeit N. Benmakhlouf-Larcher, S. Schlagheck, C. Nocco
Die ehemalige Bibliothek des Center of Global Dialogue der Swiss Re in Rüschlikon wurde zu einer multifunktionalen Garden Lounge umgebaut, die einen starken Bezug zum Garten aufnimmt und an den Typus einer Sala Terrena erinnert. Eine raumhaltige, umlaufende Hülle aus silbern gebeizter Hagebuche bildet den ruhigen, lichten Hintergrund für die vielfältige Nutzung des Raumes, integriert Technik, Regale und multimediale Ausstattung und ermöglicht durch verschiebbare Elemente unterschiedliche Szenarien zwischen Bibliotheksbetrieb und Eventnutzung.
Geöffnet gibt die Hülle im Alltag den Blick auf die Bücherregale frei, während sie bei Veranstaltungen Monitore sichtbar macht. Technische Installationen wie Lüftung, Beleuchtung und Medientechnik wurden weitgehend unsichtbar integriert, sichtbare Elemente einheitlich in schwarzem Stahlrohr gestaltet.
Das Gestaltungskonzept der Möbel knüpft an die ursprüngliche Idee des Gebäudes an, in dem alle Möbel und Textilien eigens von den Architekten Adolf Krischanitz, Hermann Czech und dem Künstler Gilbert Bretterbauer entworfen wurden. Für den Umbau wurden diese Möbel überarbeitet und mit neuen Stoffen bezogen. Die Ausformulierung des künstlerischen Konzeptes der Textilien erfolgte durch Gilbert Bretterbauer. Er ordnet jedem Möbeltypus eine eigene Stoffkollektion mit einer starken Farbigkeit zu. Die Zusammenstellung der Möbel der unterschiedlichen Möblierungsszenarien, mit denen der Raum bespielt wird, schafft immer neue Farbzusammenstellungen und Kompositionen. Der fast raumfüllende Teppich verbindet die verschiedenen Möbelgruppen zu einem Gesamtbild und unterstützt die variablen Nutzungsmöglichkeiten. So entsteht ein farbintensives, atmosphärisch dichtes Raumkunstwerk, das die ursprüngliche Gestaltung des CGD fortführt und gleichzeitig den Prinzipien des zirkulären Bauens und der Nachhaltigkeit entspricht.












